£4,250 PCM

Chalfont St Peter, Gerrards Cross, Buckinghamshire

1 1

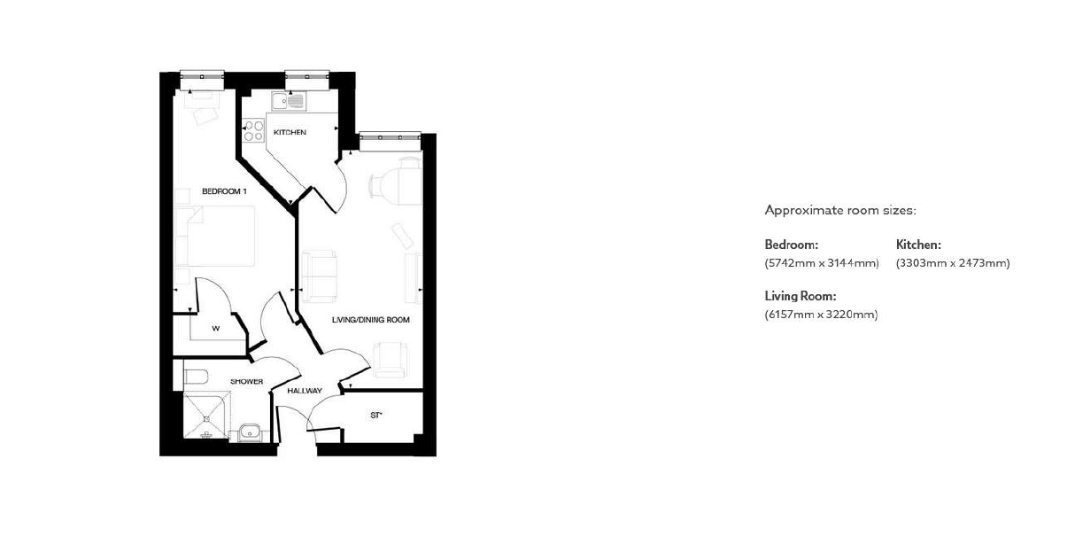
The Hobsons is a beautiful one bedroom, first floor apartment for the over 70s. This spacious apartment has been thoughtfully designed providing a relaxing and carefree lifestyle all set within this exclusive Retirement Living Plus development. Additionally comprising a spacious living/dining room area, a modern fitted kitchen, a further double bedroom with a walk in wardrobe. The apartment is equipped with under floor heating throughout, an intruder alarm and camera entry system. For those with limited mobility, there are lifts to all floors, wheelchair access, domestic assistance and a 24-hour emergency call system, and a mobility scooter charging room is available. Rutherford House in Chalfont St. Peter is a modern Retirement Living Plus development and residents are treated to all the facilities of the Retirement Living Plus development, including an on-site Bistro, landscaped gardens. There is also a Communal Lounge with free Wi-Fi and a wellbeing suite. Visitors are able to stay overnight in the Guest Suite.

Register for Property Updates